ENTE

UMNUTZUNG UHRENFABRIK IN WOHNLOFT

AUSGANGSLAGE
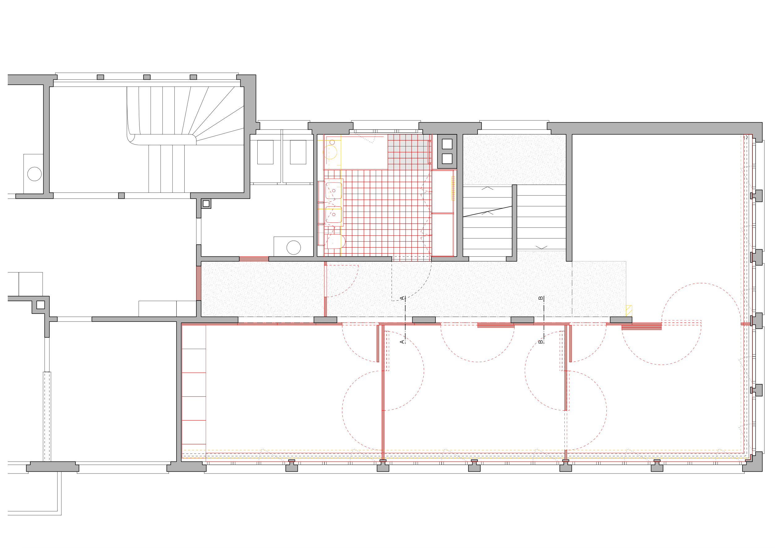
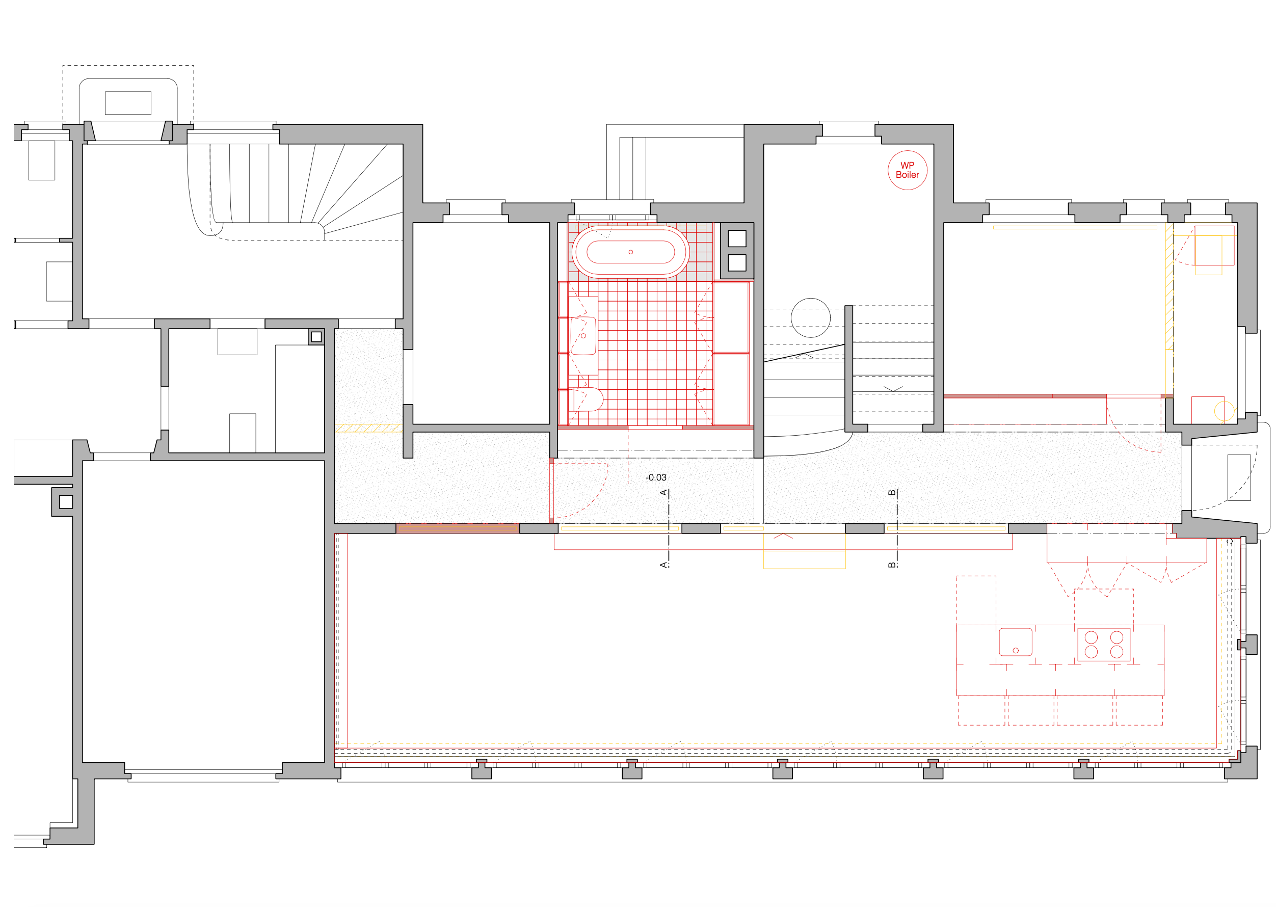
Das im Jahre 1947 durch Henri Dubuis erbaute Haus am Jurasüdfuss bildet eines der übriggebliebenen Zeitzeugen des Uhrenbooms der Stadt Biel. Typisch für diese Zeit besteht das Haus aus einem Wohnteil mit der Wohnung des Patrons und angebautem Produktionsteil über zwei Geschosse. Dieser wurde bereits in den 90er-Jahren baulich verändert und neu als Grossraumbüro genutzt. Im Rahmen einer Machbarkeitsstudie werden verschiedene Zukunftsszenarios überprüft und der Grundstein für die Umnutzung zu einer Wohnloft gelegt.

PROJEKT
Der Industriecharakter soll erhalten und gestärkt werden. Dazu werden die Eingriffe in die Bausubstanz so gering als möglich gehalten und die Oberflächen aufbereitet und wieder hervorgehoben. Um die Bausubstanz nicht zu konkurrenzieren, werden alle Einbauten in Holz erstellt und neue Installationen sichtbar geführt. Die Spuren werden nicht verwischt sondern ehrlich gezeiht, dies dient der Ablesbarkeit einer bald 80-jährigen Historie der Liegenschaft. Ziel des Umbaus: Flexibilität in der heutigen wie zukünftigen Nutzung. Im Sinne einer nachhaltigen Haltung, so wenig wie möglich, so viel als nötig.



Ort: Biel
Auftraggeber: Investor
Leistungen: Machbarkeitsstudie, Planung bis Realisierung
Fotografie: Fabio Blaser
Jahr: 2023 - 2024