FRUT

NEUBAU WOHNHAUS FRUTIGEN

AUSGANGSLAGE
Ein Grundstück aus Familienbesitz ermöglicht einer jungen Familie mit Zukunftsvisionen ein Eigenheim im Kandertal. Ortsgebundenheit, Tradition sowie Nachhaltigkeit und Anpassungefähigkeit über Zeit sind die Schlagwörter, welche am Anfang des Projektes stehen und den gemeinsamen, persönlichen Planungsprozess prägen.

PROJEKT
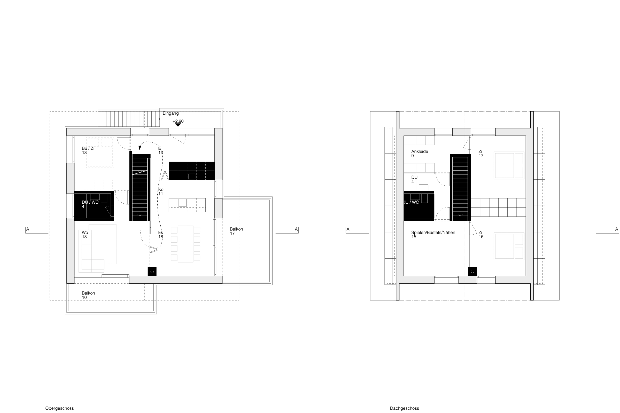
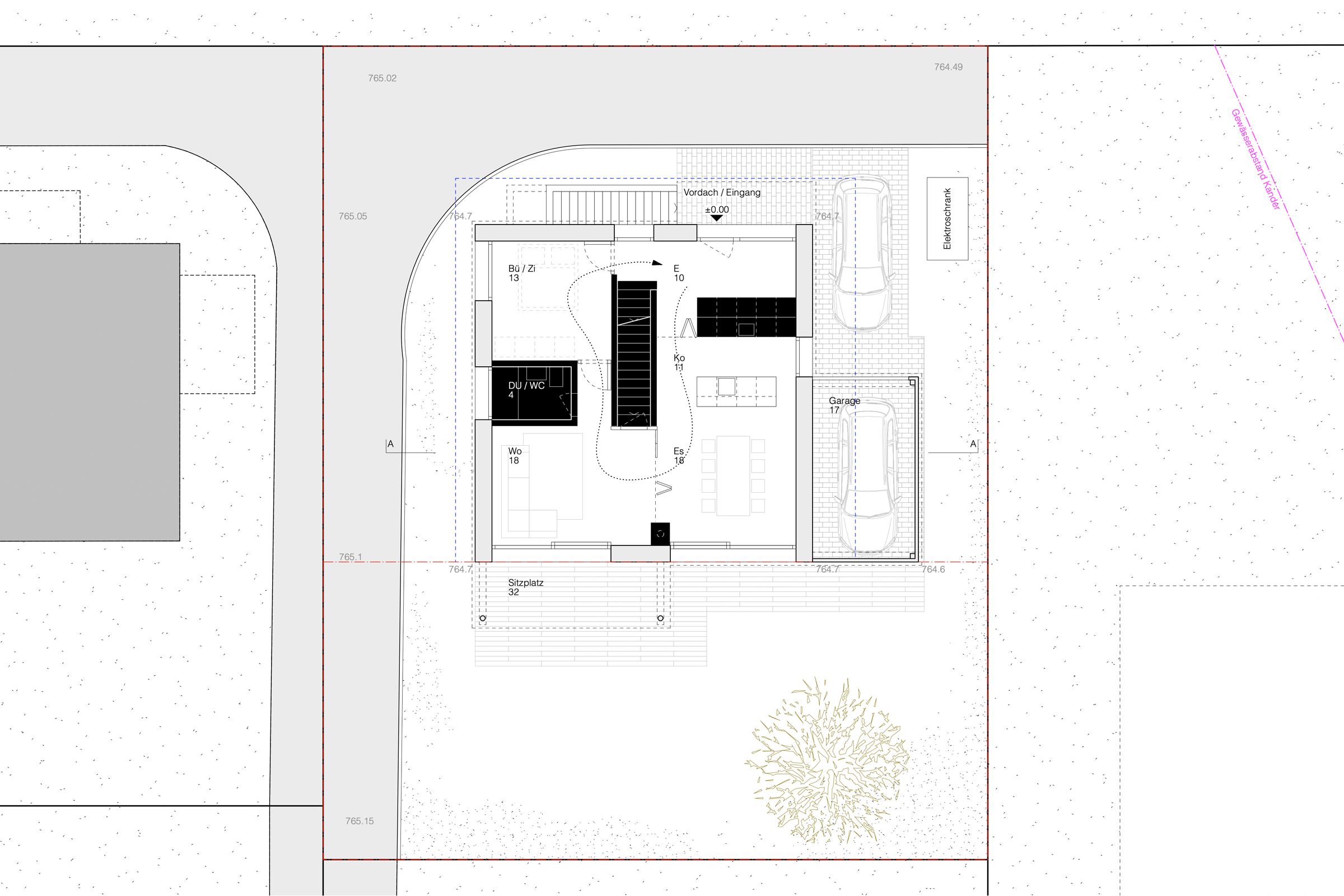
Das Projekt erstreckt sich über drei Obergeschosse, wobei das dritte in einer Zukunftsvision mit wenigen baulichen Interventionen eigenständig als Wohnung funktionieren kann. Der Grundriss wird über präzise gesetzte, charakteristische Einbauten (Nasszellen, Eingangsmöbel, Treppe, Kamin) unterteilt. Es entsteht eine fliessende Wohnfigur, welche sich um den Kern herum bewegt und die jeweilige Aussicht in Szene setzt. Das innovative Innere wird ummantelt mit einer Holzfassade und einem Satteldach, womit sich der Bau unaufgeregt in die charakteristische Umgebung eingliedert.



Ort: Frutigen
Auftraggeber: Privat
Leistungen: Machbarkeit und Projektierung
Kollaboration: -
Jahr: 2021 - 2022