WOBA
        
        
        
        
        
        UMNUTZUNG GEWERBELIEGENSCHAFT
AUSGANGSLAGE
Die Liegenschaft zwischen dem Rheinhafen und dem ehemaligen Dorfkern von Kleinhüningen, einem Quartier im Nordwesten Basels, welches durch Industrie und Hafen geprägt wurde, soll transformiert werden. Gesucht werden transformierbare Grundrisse für eine zeitgemässe städtische Wohnnutzung, welche sich der Gebäudestruktur unterordnen.
PROJEKT
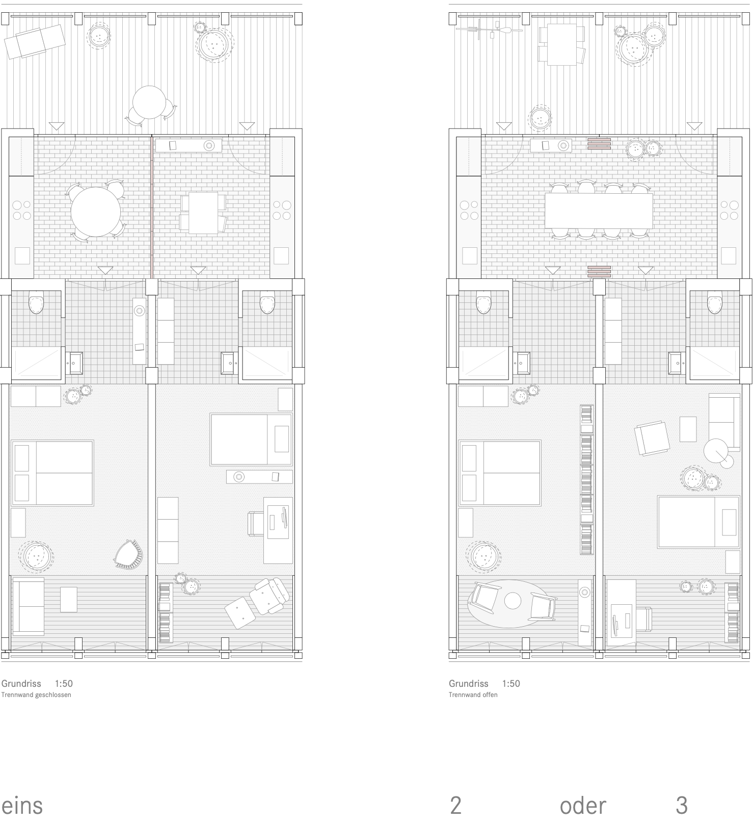
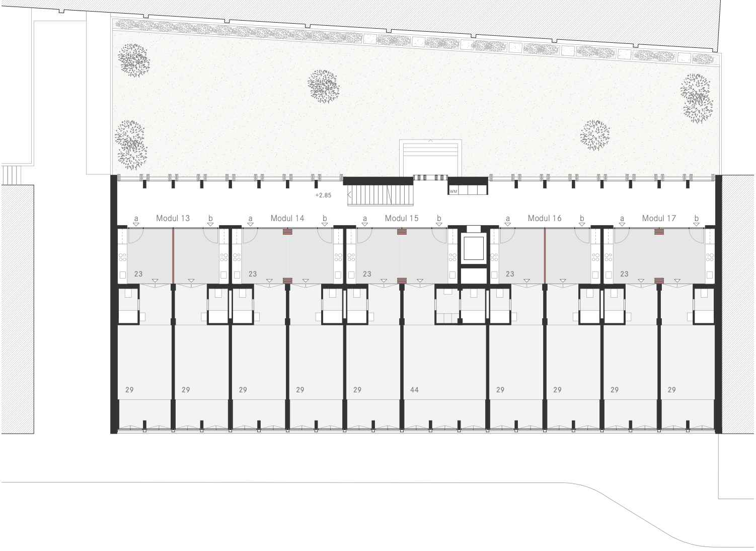
Eine präzise Erschliessungsfigur gliedert die unterschiedlichen Nutzungen im Haus und schafft verschiedene Privatheitsgrade: Ein prägnanter Treppenaufgang führt in die grosszügige Eingangshalle, welche sämtliche Nutzungen erschliesst und eine Querverbindung vom Strassenraum in den hofseitigen Aussenraum schafft. Der Hof ist das extrovertierte Zentrum und ermöglicht für Begegnungen. Die  Laubengänge, welche die Wohnungen  erschliessen, werden durch die Bewohner in Beschlag genommen und dienen als privater Aussenraum. Die Essküchen teilen sich jeweils zwei Kleinwohnungen. Die Kleinwohnung selbst ist schliesslich der individuelle private Rückzugsort des Einzelnen. Die Grundrisstypologie ist durch flexible Trennwände modular aufgebaut: Eins 2 oder 3 und ermöglicht damit verschiedene Nutzungsszenarien.
Ort: Basel
Auftraggeber: Kanton Basel Stadt
Leistungen: Wettbewerb
Kollaboration: Mettler Architekten GmbH
Jahr: 2020