KIRA

ERWEITERUNG DOPPELGARAGE

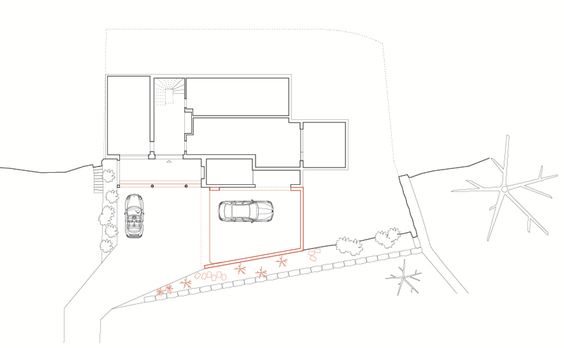
AUSGANGSLAGE
Ein bestehendes Einfamilienhaus auf einer Parzelle an bester Lage mit Seesicht, allerdings mit vielen Höhenunterschieden, soll um eine Doppelgarage erweitert werden. Der Garten soll dabei nicht geschmälert werden, die Garage ist stattdessen in das Terrain einzubauen. Die Qualitäten des Bestandes sind unbedingt zu erhalten und die Schwierigkeiten in der Umgebung wo immer möglich aufzunehmen. Die Herausforderung ist gross.

PROJEKT
Der Anbau kann durch die Absenkung des Vorplatzes bestmöglich zum Bestand platziert werden. Die Höhenkoten der bestehenden Betondecke werden mit dem Betonkranz des Garagendaches weitergeführt und erscheinen so als selbstverständlich und gewachsen. Damit wird ein neuer Auftritt des Eingangs geschaffen, dieser ist nun über zwei lange Tritte erreichbar. Die Gartenebene erhält eine neue Klarheit, Gartenstufen gliedern die Umgebung in differenzierte Ebenen und stärken den Ausblick zum See. Das hölzerne Garagentor rollt sich wie ein Vorhang zur Seite und macht aus dem Garagenbau ein eingebettetes Gartenelement.



Erweiterung Doppelgarage

Ort: 2572 Sutz
Auftraggeber: Privat
Leistungen: Vorprojekt - Ausführung
Kollaboration: -
Jahr: 2017